1480 Tubize
Belgique

Maison à vendre

279.000,00 €

  • 204 m2

  • 3

  • 1

Prix 279.000,00 €
Revenus cadastral
Type Maison
Année de construction
Nb de façades
Superficie du terrain 243m²
Superficie habitat 204m²
Orientation
Localisation 1480 Tubize / / Belgique
chambre(s) 3
Chambre 1 12 m²
Chambre 2 12 m²
Chambre 3 16 m²
salle(s) de bain 1
Salles d'eau 0

Description

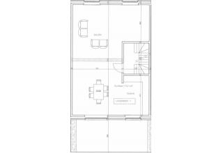
Casapoint vous présente "Flora", une maison unifamiliale 2 façades vendue en gros œuvre fermé, idéalement située à proximité immédiate du centre-ville et de toutes les commodités (commerces, écoles, gare, bus). Érigée sur un terrain de 2 ares 43 avec une façade de 7,5 mètres et une profondeur de 32 mètres, cette maison de type bel-étage bénéficie d’un permis d’urbanisme. Elle comprend au rez-de-chaussée : un garage, un wc séparé et une buanderie. Au premier étage : un spacieux séjour, une cuisine, une terrasse et un jardin. Au deuxième se trouve une salle de bain et 3 chambre. Au troisième étage un grenier aménageable.  Le gros œuvre fermé comprend la structure, la maçonnerie, les châssis et la toiture . Le terrain est libre de constructeur pour la suite des finitions, et les raccordements sont disponibles à proximité. Prix: 279.000 €, 21% de TVA sur la partie construction ainsi que 3% (premier achat) ou 12,5 % sur la partie terrain. Pour plus d’informations et/ou pour organiser une visite, contactez-nous au 067/63.96.00. Vous êtes déjà propriétaire et souhaitez vendre pour acheter ? Aucun problème, CASAPOINT s’occupe de tout !

Nuisances

 Zone inondable  Aucun  Faible  Moyen  Important


Plan




Contactez-nous

Rechercher un bien en Belgique

x
Pour mieux vous servir, nous utilisons des cookies Plus d'informations. Accepter les cookies