1480 Tubize
Belgique

Terrain à vendre

110.000,00 €

  • 0 m2

  • 0

  • 0

Prix 110.000,00 €
Revenus cadastral
Type Terrain
Année de construction
Nb de façades
Superficie du terrain 243m²
Superficie habitat 0m²
Orientation
Localisation 1480 Tubize / / Belgique
chambre(s) 0
salle(s) de bain 0
Salles d'eau 0

Description

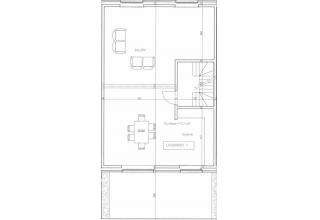
Casapoint vous présente " Franck", un terrain à bâtir avec permis d'urbanisme de 2 ares 43 (repris en bleu sur le plan) avec une façade de 7,5 mètres sur une profondeur de 32 mètres, bénéficiant d'une situation idéale au centre-ville et est proche de toutes les commodités (commerces, école, gare, bus). Le terrain dispose d’un permis d’urbanisme délivré pour la construction d’une maison unifamiliale de type bel-étage, 2 façades, comprenant un garage au rez-de-chaussée + deux étages + comble et un jardin. Terrain libre de constructeur, raccordements à proximité. Opportunité idéale pour construire rapidement sans démarches administratives. Possibilité frais d'enregistrement réduit à 3% dans le cadre d'un premier achat. Prix : 110.000 €. Pour plus d'infos et visites 067/63.96.00. Vous êtes déjà propriétaires et souhaitez vendre pour acheter Aucun problème, CASAPOINT s'occupe de tout !

Nuisances

 Zone inondable  Aucun  Faible  Moyen  Important

Environnement

 Transports en commun à proximité  Non  Oui
 Ecole à proximité  Non  Oui
 Commerces à proximité  Non  Oui
 Autoroute à proximité  Non  Oui


Plan




Contactez-nous

Rechercher un bien en Belgique

x
Pour mieux vous servir, nous utilisons des cookies Plus d'informations. Accepter les cookies